3-part CSI specifications and Technical Data Sheets

Industrial Floor Installation

Everlast Industrial Floor with Integral Cove Base Architectural

epoxy cove base and wall installation

Everlast Integral Cove & Wall Architectural Specification

overnight epoxy floor

Everlast Industrial Floor FS with Integral Cove Base Architectural

Architectural Details & Drawings

Everlast Industrial Floor transition to concrete detail

Everlast Industrial Floor transition to concrete detail

Epoxy floor transition to thicker floor detail

Epoxy floor transition to thicker floor detail

Epoxy floor transition to other floor detail

Epoxy floor transition to same thickness floor detail

Everlast Integral Cove Base without Cap detail

Everlast Integral Cove Base without Cap detail

Everlast Integral Cove Base with Cap detail

Everlast Integral Cove Base with Cap detail

Everlast Integral Cove Base with FRP Wall Panel detail

Everlast Integral Cove Base with FRP Wall Panel detail

Everlast Integral Cove Base with Ceramic Tile or Wainscoting detail

Everlast Integral Cove Base with Ceramic Tile or Wainscoting detail

Cant Cove Base Detail

Cant Cove Base Detail

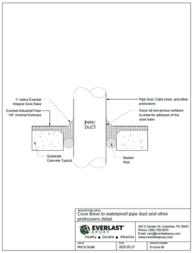
Cove Base to waterproof pipe duct and other protrusions detail

Cove Base to waterproof pipe duct and other protrusions detail

Everlast Industrial Floor waterproof drain detail

Everlast Industrial Floor waterproof drain detail

Everlast Industrial Floor waterproof trench drain detail

Everlast Industrial Floor waterproof trench drain detail

Everlast Industrial Floor trench drain detail

Everlast Industrial Floor trench drain detail

Everlast Pro Floor Non-Moving Control Joint detail

Everlast Pro Floor Non-Moving Control Joint detail

Everlast Pro Floor transition to concrete detail

Everlast Pro Floor transition to concrete detail

Everlast Industrial Flex Floor waterproof drain detail

Everlast Industrial Flex Floor waterproof drain detail